Ratings
ARRANGE TO VIEW THIS PROPERTY

For Sale Striking aestheticaly designed apartmennts in Larnaca, Larnaca

This is an exciting new development, located in the sought-after area of Larnaca. This luxurious residential project is set in a prime location, offering an ideal living environment for those seeking tranquility and beauty.

The four-storey building features a striking architectural design, constructed with high-quality materials and premium finishes. It will house 10 spacious apartments, each offering breathtaking views of the surrounding area, including stunning sea vistas.

This modern project stands out not only for its stylish design but also for its attractive pricing. It provides privacy, comfort, and a harmonious aesthetic, making it perfect for families. Bright and airy bedrooms with wardrobes, luxurious bathrooms, open plan living areas and relaxing verandas will make you fall in love at the first sight with the property. 

With its close proximity to schools, shops, restaurants, cafes, and other amenities, along with easy access to the highway this amazing project, offers an exceptional living experience.

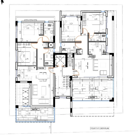
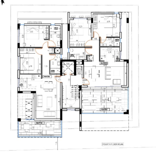
ONLY two, 2 beds apartments on the top floor  available for sale with asking price 345.000-355.000 euros plus vat.



Sales Price:
From € 345,000 to € 355,000 + VAT
Listing Type:
Residential
Property Type:
Apartment
Property S/Type:
Penthouse
Property Status:
New
Completion Date:
01-10-2026
Living Area:
79m2 - 80.6m2
Bedrooms:
2
Veranda/Patio:
56.9m2 - 78.3m2
Total area:
137.5m2 - 158.2m2
WC's:
2

Project Info / Price List

Apartment

Ad#/Sellers Ref BedroomsTotal areaSales Price
19165/A /401 2153.2 m2€ 355,000 + VAT
19165/B /402 2137.5 m2€ 345,000 + VAT

Features

Internal

Split Units
Air Conditioned
Clothes Cabinet
Granite Counter Tops
Curtains
Led Lights
Laminated Flooring
Tiled Flooring
Alarm System

Furniture & Appliances

Unfurnished
Oven
Refrigerator
Dishwasher
Microwave
Washing Machine

External

Landscaped Garden
Roof Garden
Private Water Supply
Auto Irrigation System
Fenced/ Walled Perimeter
External Shutters


2 Photos
Call Onlineproperties on 22 02 67 02 to view this property
ARRANGE A TIME TO VIEW THIS PROPERTY

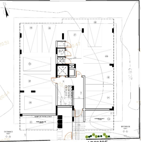
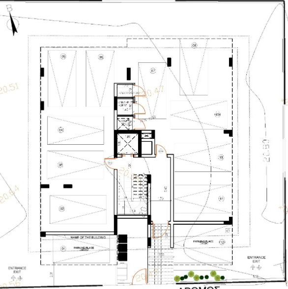
Floor Plans

Call Onlineproperties on 22 02 67 02 to view this property
ARRANGE A TIME TO VIEW THIS PROPERTY
Places I've saved(Add/edit places) View nearby schools on map
Location of property is with in displayed area
Call Onlineproperties on 22 02 67 02 to view this property
ARRANGE A TIME TO VIEW THIS PROPERTY
Distance
Address:
Telephone:
Rating:
Website:

Energy Efficiency Certificate

  • Α Certification
  • 0.00 kgCO2/m2/yr
0.50
KWh/m2/yr
0.00
kgCO2/m2/yr
Call Onlineproperties on 22 02 67 02 to view this property
ARRANGE A TIME TO VIEW THIS PROPERTY

Please Login To See Shortlisted Properties

Please Login To See Rated Properties

Please Login To See Notifications

Please Login To See Arranged Viewings