Ratings
ARRANGE TO VIEW THIS PROPERTY

For Sale Whole residential building with apartments, high ROI in Larnaca, Livadia Larnakas

Whole residential building for sale with excellent ROI. Located in a location close to the sea, in a quite residential area with all the amenities close by, easy access to the town center and the high way.
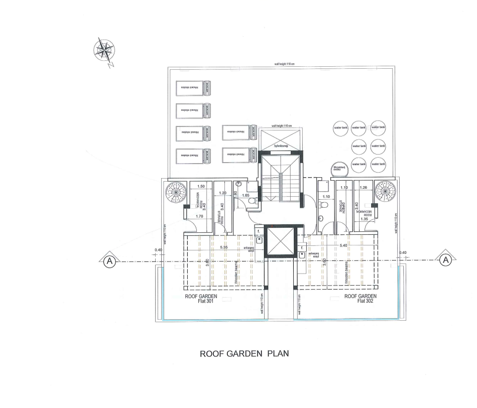
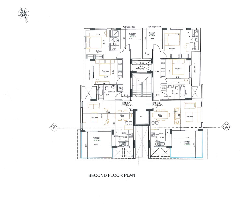
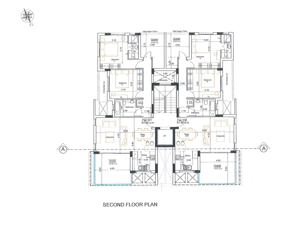
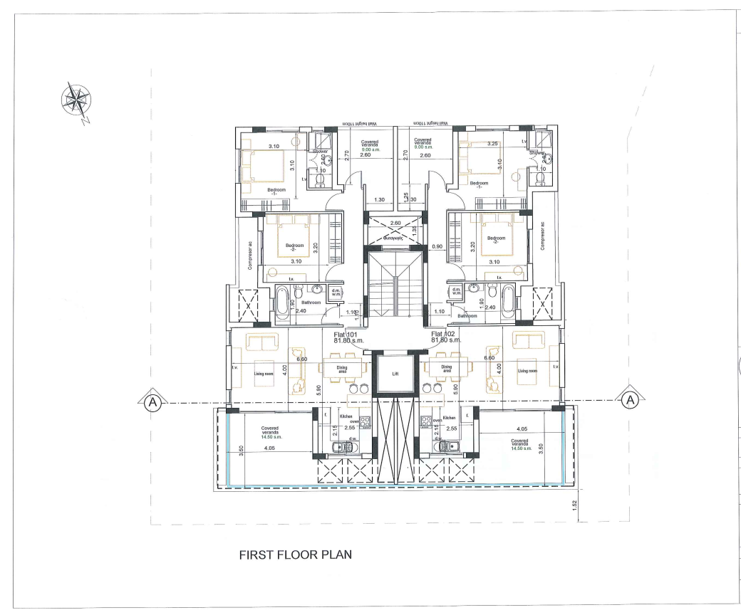
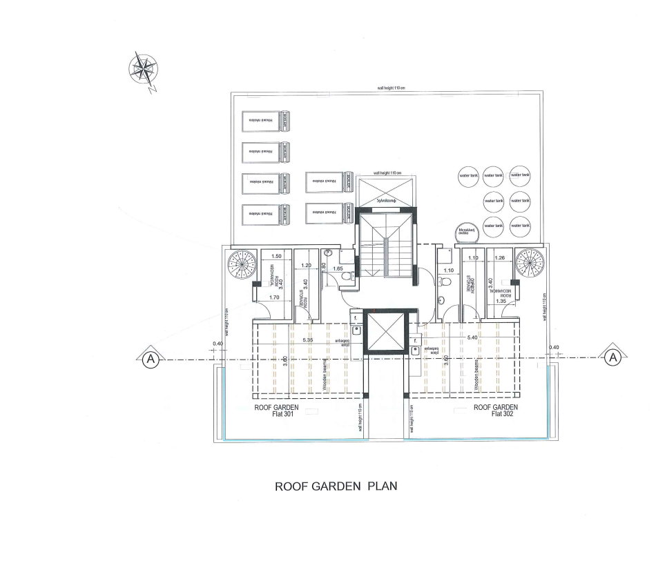
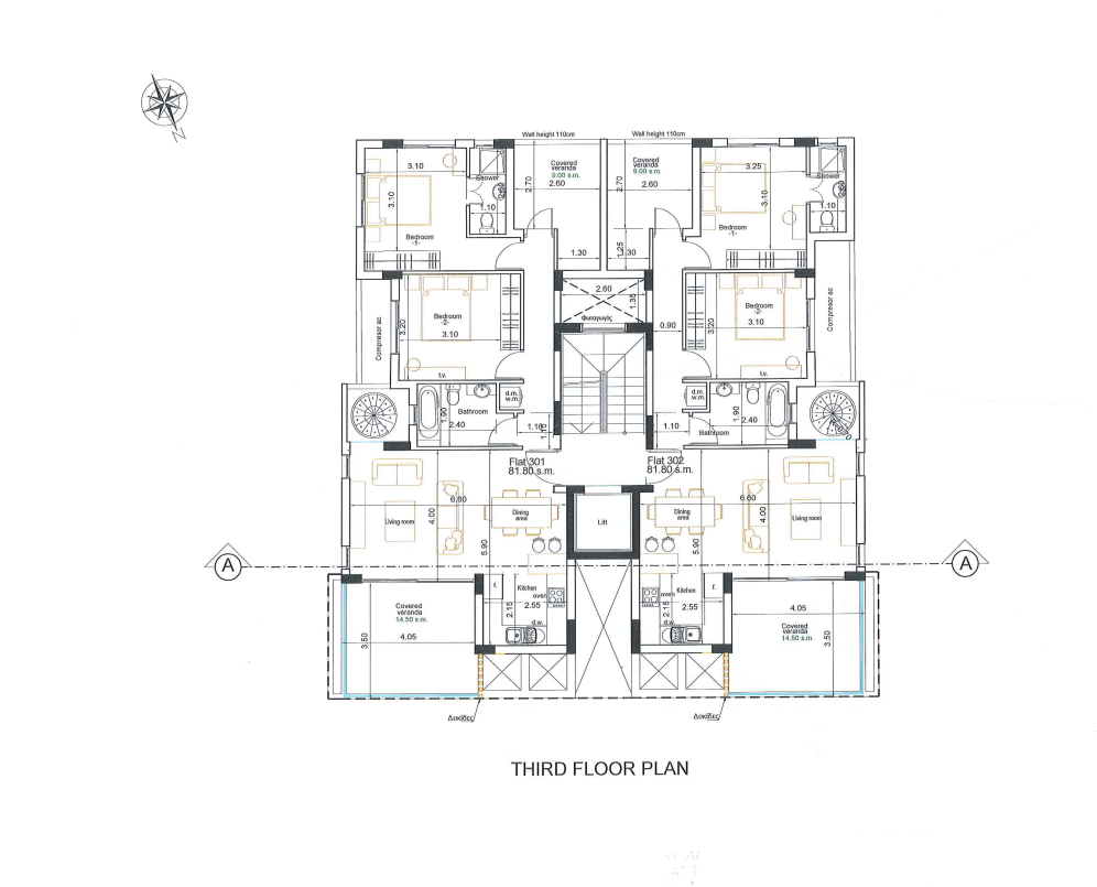
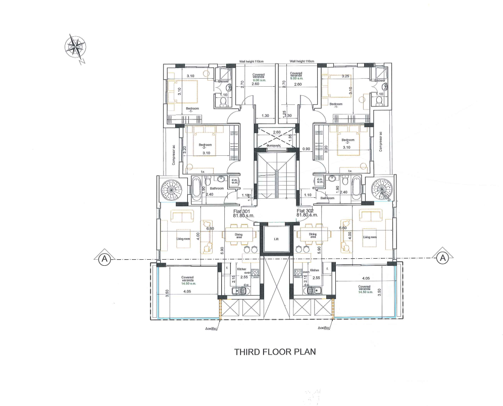
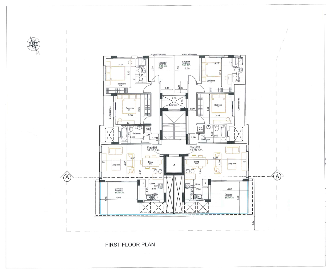
This is a great investment with  high buy-to-rent potential as well as being fully compliant with Cyprus Permanent Residency Program. The complex comprises of six 2-bedroom apartments over three floors. The third floor units enjoy private and individual access to a large roof garden on the 4rth floor with its barbeque area, as well as an extra wc- shower and room that can be converted 3rd bedroom. These top floor units will have net metering and photovoltaic system.
Project Details
1.16 km from the sea
1500 m from the marina
5 minutes drive to the town center
1000m from American University of Cyprus 
15 min from the airport
south facing building bringing natural light into the rooms
cul-de-sac project 

Whole building asking price is 1.480.000 euros plus vat.



Sales Price:
€ 1,480,000 + VAT
Listing Type:
Residential
Property Type:
Various
Property Status:
New
Date Available:
20-05-2026
Living Area:
82m2
Bedrooms:
2
Veranda/Patio:
23.5m2 - 83.5m2
Total area:
105.5m2 - 604.8m2
Units:
6
Plot Size:
492

Project Info / Price List

Apartment

Ad#/Sellers Ref BedroomsTotal area
18484/A /101 2112.8 m2
18484/B /102 2112.8 m2
18484/C /201 2105.5 m2
18484/D /202 2105.5 m2
18484/E /301 rof garden 2165.5 m2
18484/F /302 roof garden 2165.5 m2
12 Photos
Call Onlineproperties on 22 02 67 02 to view this property
ARRANGE A TIME TO VIEW THIS PROPERTY

Floor Plans

Call Onlineproperties on 22 02 67 02 to view this property
ARRANGE A TIME TO VIEW THIS PROPERTY
Places I've saved(Add/edit places) View nearby schools on map
Location of property is with in displayed area
Call Onlineproperties on 22 02 67 02 to view this property
ARRANGE A TIME TO VIEW THIS PROPERTY
Distance
Address:
Telephone:
Rating:
Website:

Energy Efficiency Certificate

  • Pending Certification

kgCO2/m2/yr
Call Onlineproperties on 22 02 67 02 to view this property
ARRANGE A TIME TO VIEW THIS PROPERTY

Please Login To See Shortlisted Properties

Please Login To See Rated Properties

Please Login To See Notifications

Please Login To See Arranged Viewings