Ratings
ARRANGE TO VIEW THIS PROPERTY

For Sale Luxury 1-2beds apartments with roof garden, exclusive area in Nicosia, Engomi

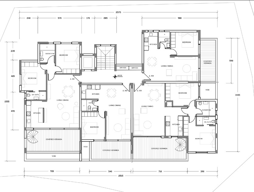
The building consists of luxury 1 and 2- bedroom apartments, with private roof terraces for the top floor 2bedroom apartments. The building enjoys the openness and quietness of the area, yet has direct access to main arteries of and the the city, and with close proximity to key locations such as the University of Nicosia Campus, the Medical School.
The building has a unique architectural design with contemporary elements, internally the the building s form offers spacious living spaces with large sliding doors leading to large terraces.

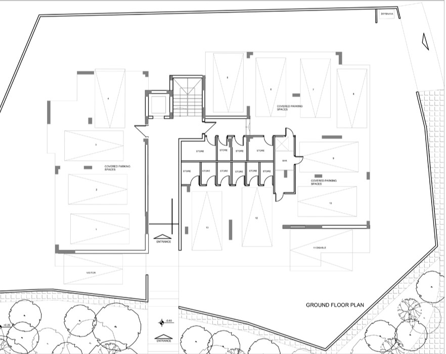
The building will be supported by photovoltaic panels for the energy efficiency of the common areas. Complete installation of under - floor heating system supported by a heat pump system , concealed type AC units, in living/ dining areas and all bedrooms of the apartments, installation of solar heaters will be provided, provision of  installation of a security system, one covered parking space per apartment, storage area, installation of a video entry phone system at the main entrance, there will be an electrical controlled door at the front entrance of the building with keypad access control system, electrical controlled access gates will be provided for the car parking areas.

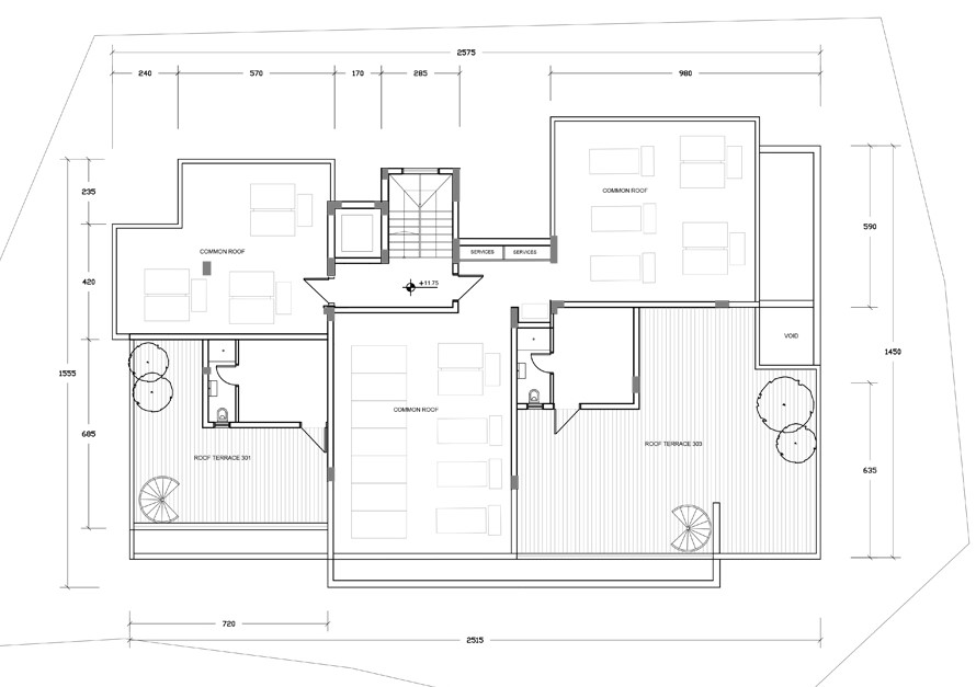
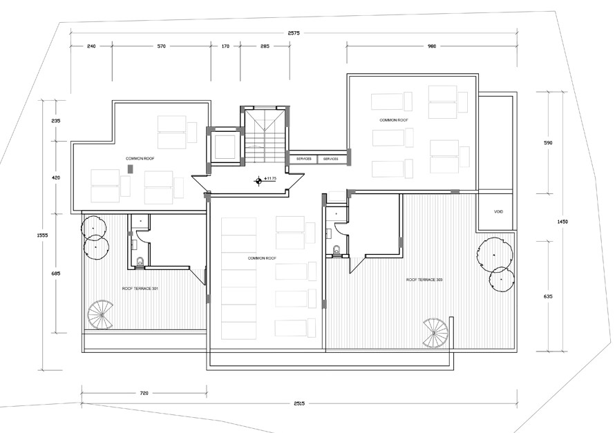
The highlight of the two 2beds top floor apartments would be the roof terrace, which would offer stunning views of the surrounding area and provide a tranquil outdoor space for relaxation and entertainment. The rest of apartments offers high end living as well as extra care has given to the finishes and the material provided.

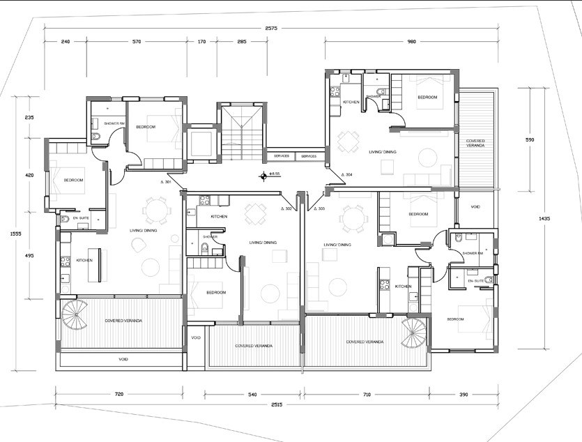
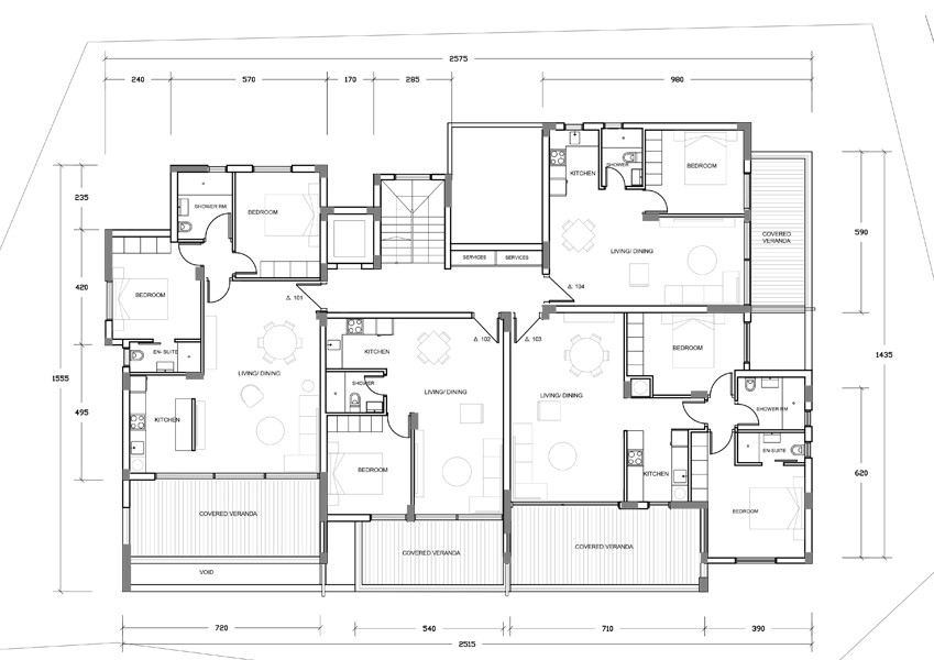
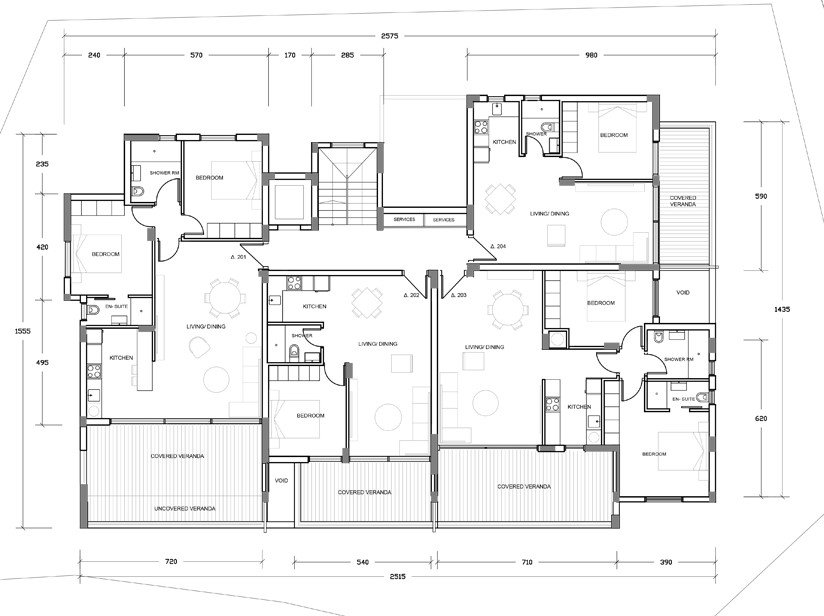
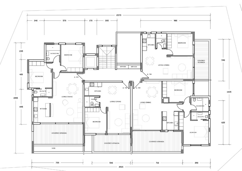
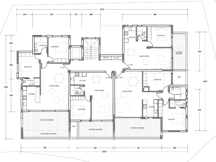
There are 5 one bed apartments, living area of 50sq.m, covered terraces of 15sq.m. and asking price €179.000- €189.000+vat.

There are 4 two bed apartments, living area of 85sq.m covered terraces of 24sq.m. and asking price €283.000-€289.000+vat.

There are 2 two bed apartments with an extra room in Roof Garden, total covered area of  138sq.m. and asking price of €320.000-€332.000+vat.


Sales Price:
From € 189,000 to € 304,000 + VAT
Listing Type:
Residential
Property Type:
Apartment
Property S/Type:
Standard Apartment
Property Status:
New
Completion Date:
19-05-2026
Living Area:
50m2 - 85m2
Bedrooms:
From 1 - 2
Veranda/Patio:
15m2 - 24m2
Total area:
65m2 - 109m2
WC's:
1 - 2

Project Info / Price List

Apartment

Ad#/Sellers Ref BedroomsTotal areaSales Price
17468/A /101 2109 m2€ 298,000 + VAT
17468/B /103 2109 m2€ 298,000 + VAT
17468/C /203 2109 m2€ 304,000 + VAT
17468/D /202 165 m2€ 194,000 + VAT
17468/E /104 165 m2€ 189,000 + VAT
17468/F /304 165 m2€ 199,000 + VAT

Features

Internal

Underfloor heater
Air Conditioned
Clothes Cabinet
Granite Counter Tops
Led Lights
Hidden Lighting
Solid Wood Flooring
Tiled Flooring
CCTV
Alarm System

Furniture & Appliances

Unfurnished

External

Landscaped Garden
Secured Entrance/garage


11 Photos
Call Onlineproperties on 22 02 67 02 to view this property
ARRANGE A TIME TO VIEW THIS PROPERTY

Floor Plans

Call Onlineproperties on 22 02 67 02 to view this property
ARRANGE A TIME TO VIEW THIS PROPERTY
Places I've saved(Add/edit places) View nearby schools on map
Location of property is with in displayed area
Call Onlineproperties on 22 02 67 02 to view this property
ARRANGE A TIME TO VIEW THIS PROPERTY
Distance
Address:
Telephone:
Rating:
Website:

Energy Efficiency Certificate

  • Pending Certification

kgCO2/m2/yr
Call Onlineproperties on 22 02 67 02 to view this property
ARRANGE A TIME TO VIEW THIS PROPERTY

Please Login To See Shortlisted Properties

Please Login To See Rated Properties

Please Login To See Notifications

Please Login To See Arranged Viewings