Ratings
ARRANGE TO VIEW THIS PROPERTY

For Rent Contemporary Luxury Duplex Furnished 2bed in Nicosia, Engomi Makedonitissa


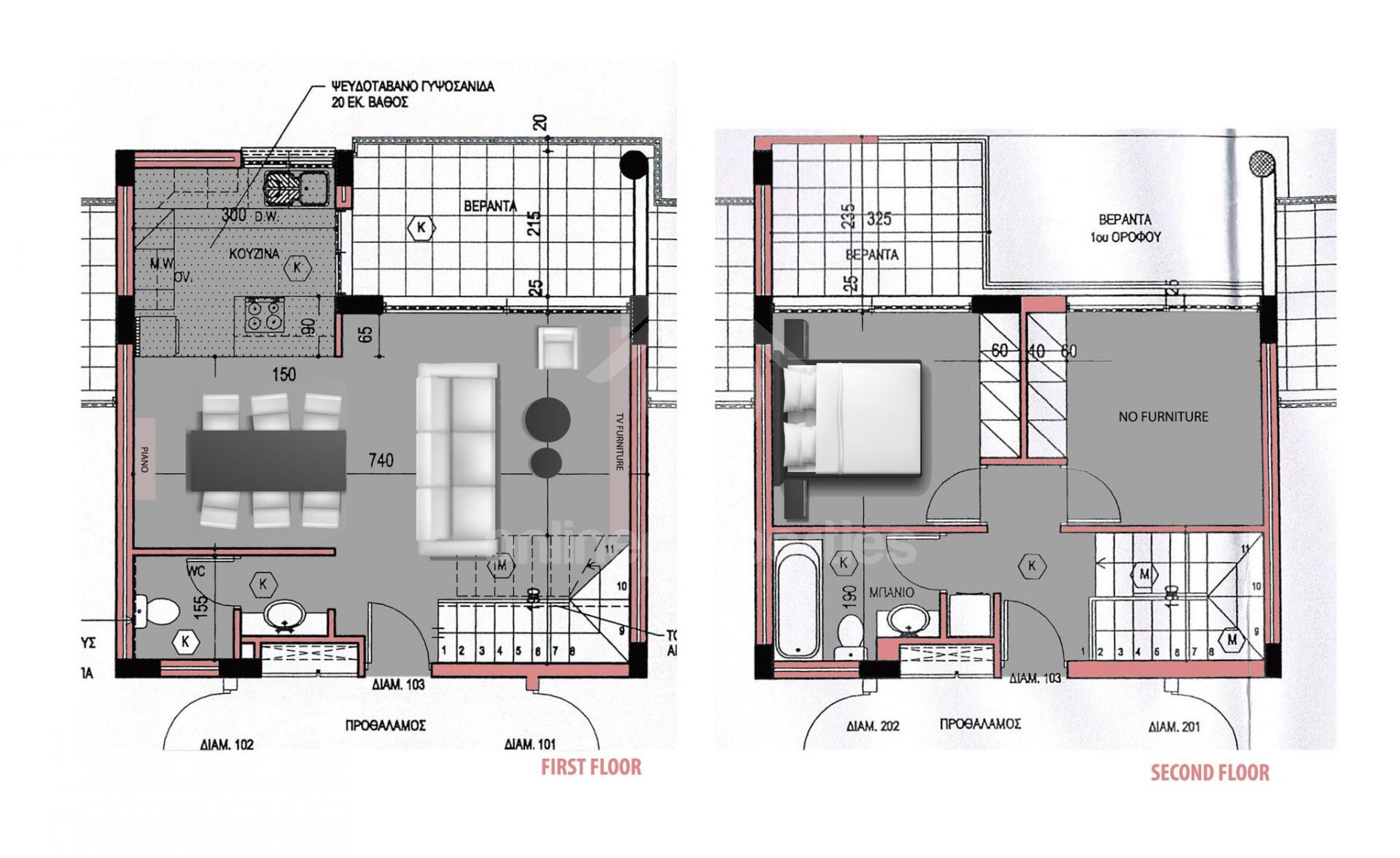
Lovely furnished duplex apartment available now for rent in Makedonitissa/Engomi, walking distance to the Mall of Engomi and at the same time a stone away from all kinds of amenities. The apartment will remain furnished as you see with all electrical appliances.It has a guest toilet plus a wc/bathtub on the upper level and nice double-covered veranda areas.
A must see ...

Rent Price:
€ 1,400 Per month + Communal fees apply extra
Listing Type:
Residential
Property Type:
Apartment
Property S/Type:
Duplex
Property Status:
Used
Date Available:
19-05-2026
Living Area:
100m2
Veranda/Patio:
12m2
Bedrooms:
2
WC's:
2
Baths:
1
Kitchen Type:
Open Plan
Extra Storage Space:
Yes
Covered Parking:
2
Pets allowed:
Not Applicable

Features

Internal

Air Conditioned
Clothes Cabinet
Elevator
Granite Counter Tops
Roller Blinds
Free Cable TV

Furniture & Appliances

Furnished
Oven
Electric Cooker
Refrigerator
Dishwasher
Washing Machine

External

Secured Entrance/garage


14 Photos
Call Onlineproperties on 22 02 67 02 to view this property
ARRANGE A TIME TO VIEW THIS PROPERTY
Places I've saved(Add/edit places) View nearby schools on map
Location of property is with in displayed area
Call Onlineproperties on 22 02 67 02 to view this property
ARRANGE A TIME TO VIEW THIS PROPERTY
Distance
Address:
Telephone:
Rating:
Website:

Energy Efficiency Certificate

  • Pending Certification

kgCO2/m2/yr
Call Onlineproperties on 22 02 67 02 to view this property
ARRANGE A TIME TO VIEW THIS PROPERTY

Please Login To See Shortlisted Properties

Please Login To See Rated Properties

Please Login To See Notifications

Please Login To See Arranged Viewings