Ratings
ARRANGE TO VIEW THIS PROPERTY

For Sale Striking New Development with Offices in Nicosia, Strovolos Dasoupolis - Strovolos

Our  new modern business building that is under construction near the entrance of Nicosia, has one of the best locations in the business center of the capital
The new modern office complex named  inspired by its location and shape, is suitable for professionals who want to accommodate their business in a specially designed space with all modern comforts.
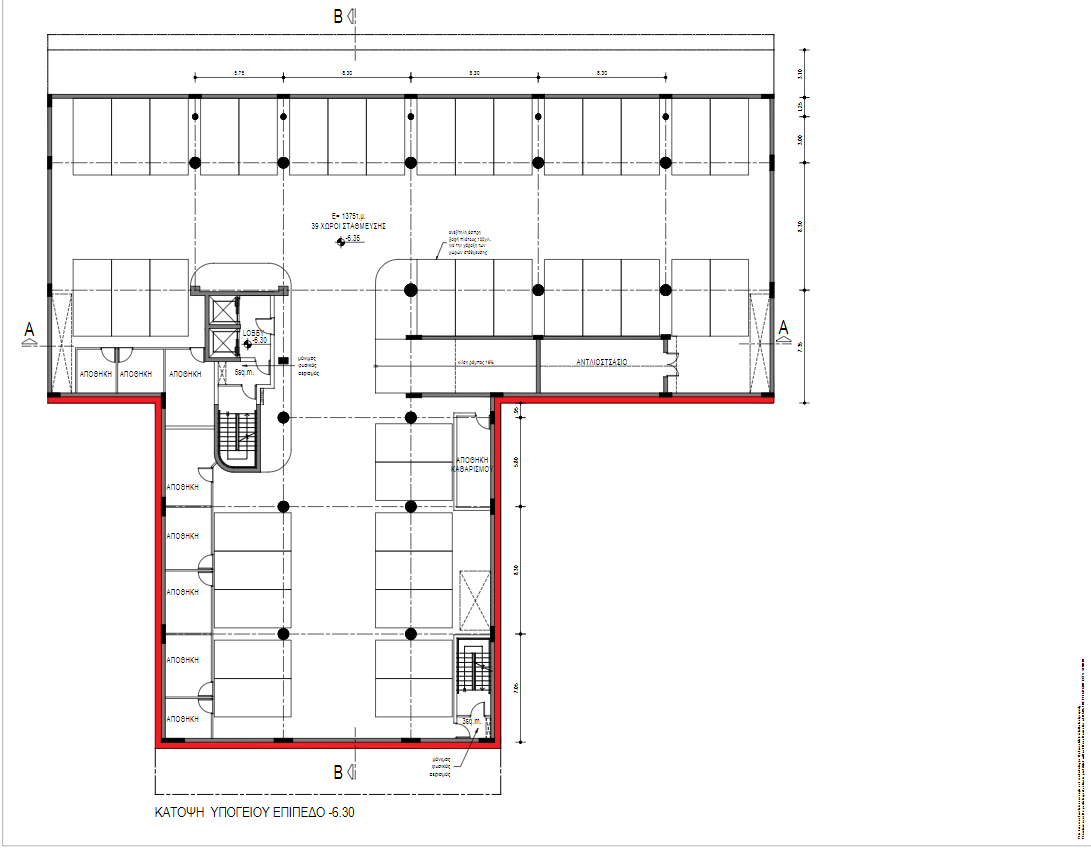
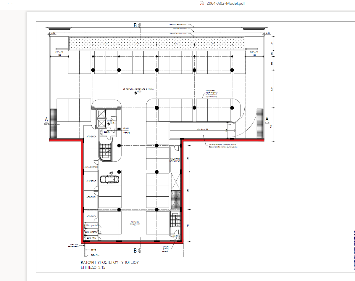
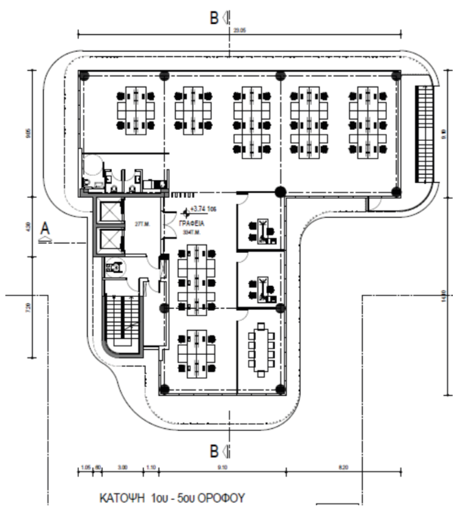
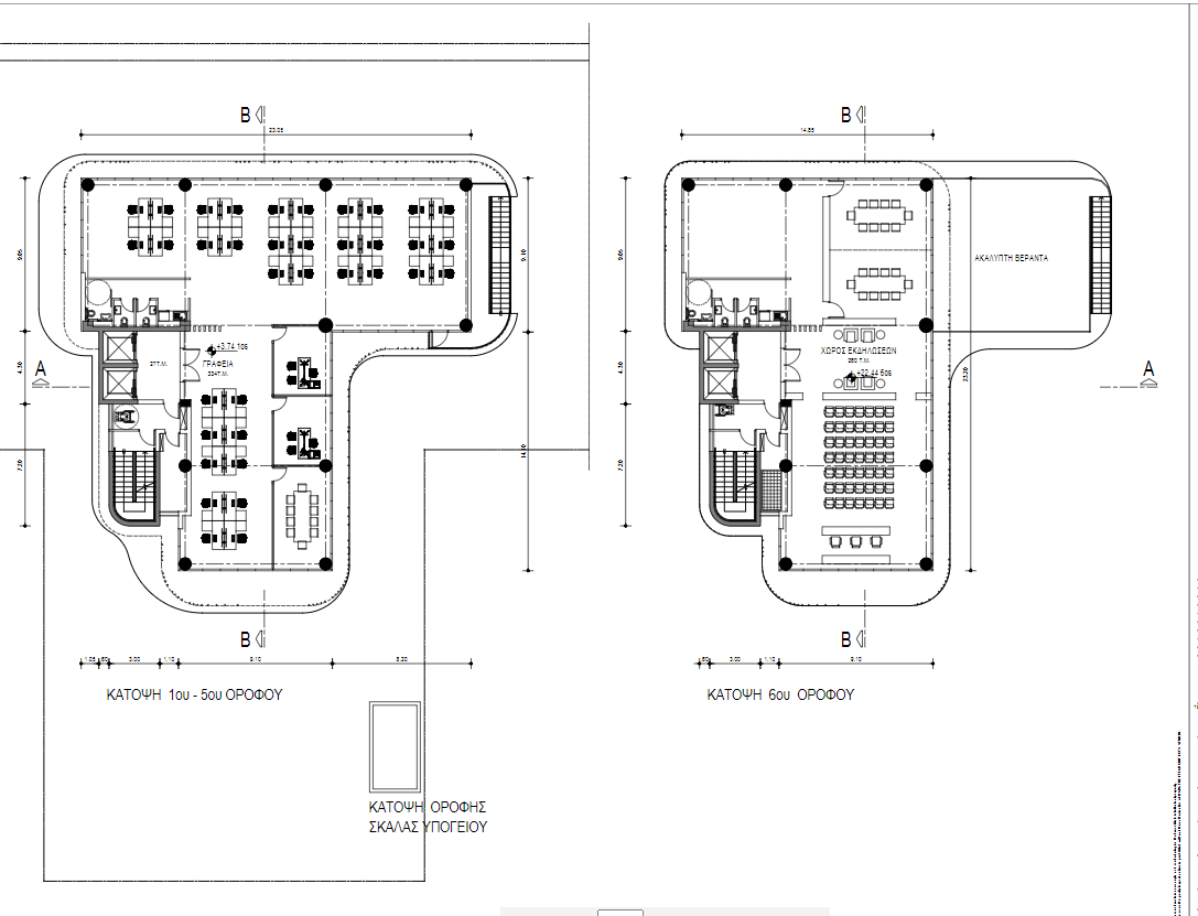
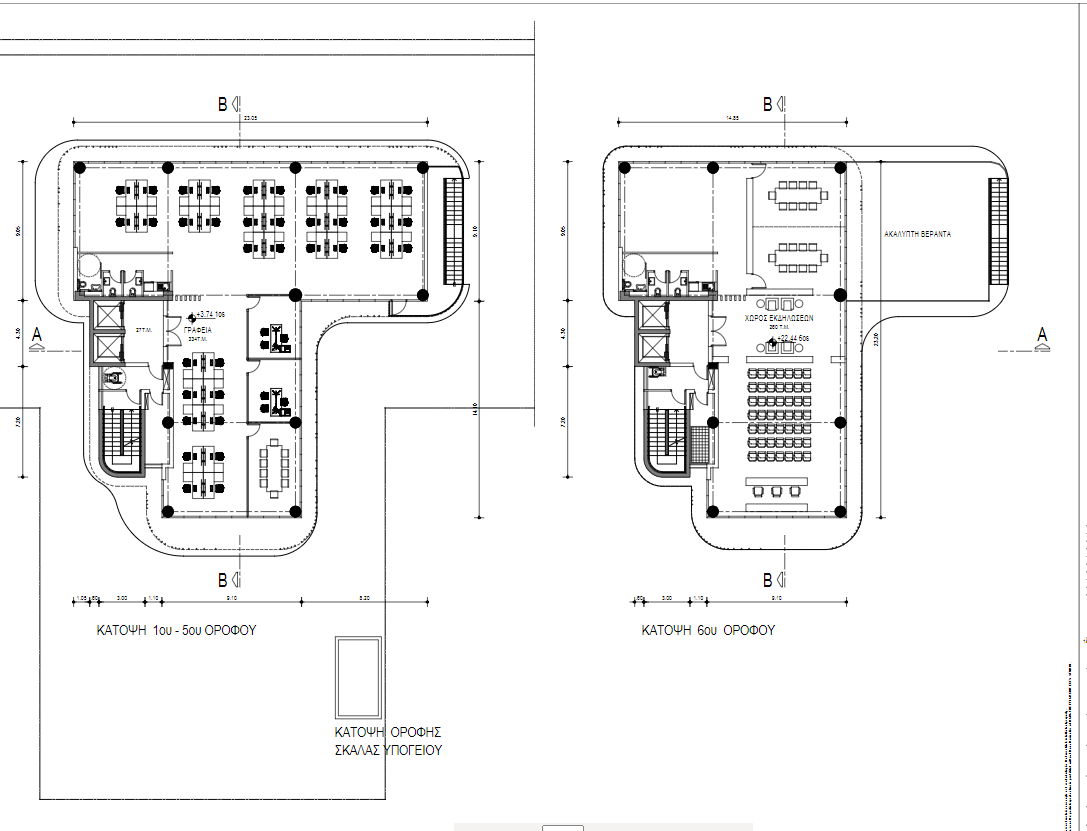
The building consists of six levels and two basements. On the ground floor we have designed three shops / offices. The rest of the building, with separate entrance, lobby area and elevator, consists of five floors with comfortable office spaces which can be divided according to the space needed by each business.
All offices have kitchens, toilets and covered verandas and can be divided into offices, meeting rooms and reception areas. The building is equipped with raised floors suitable for structured cabling and drop ceilings with climate control units.
Whole Floor Offices available for sale, total area of  224m²-329m²  and asking price is €1.320.000+vat  to €1.550.000+vat.

Class A’ Energy performance
Thermal and sound insultation
Concealed VRV air conditioning
Ventilation systems
Lighting system
Security system
Fire protection and fire extinguishing systems
Double-glazing façade
Structured cabling
Fibre-optic cables
Smart building automations
High quality raised floor
Flexible distribution of services to the working stations
CCTV Security cameras
Controlled Access System

Sales Price:
From €1,320,000 - €4012.16 Per m2 to €1,550,000 - €4711.25 Per m2 + VAT
Listing Type:
Commercial
Property Type:
Office
Property Status:
New
Date Available:
15-12-2025
Living Area:
329m2
Total area:
224m2 - 329m2
WC's:
2
Working Area:
224m2 - 329m2
Enclosed Offices:
2 - 3

Project Info / Price List

Office

Ad#/Sellers Ref WC'sTotal areaSales Price
17620/A /201 2 No.s329 m2€ 1,375,000 + VAT
17620/B /301 2 No.s329 m2€ 1,430,000 no V.A.T
17620/C /401 2 No.s329 m2€ 1,490,000 + VAT
17620/D /501 2 No.s329 m2€ 1,550,000 + VAT
17620/E /601 2 No.s224 m2€ 1,330,000 + VAT
17620/F /101 2 No.s329 m2€ 1,320,000 + VAT

Features

Internal

VRV Aircon
Air Conditioned
Structure Cabling
Elevator
Vaulted Ceilings
Raised Floors
CCTV
Alarm System

Furniture & Appliances

Unfurnished

External

Secured Entrance/garage
Access Control Entrance


5 Photos
Call Onlineproperties on 22 02 67 02 to view this property
ARRANGE A TIME TO VIEW THIS PROPERTY

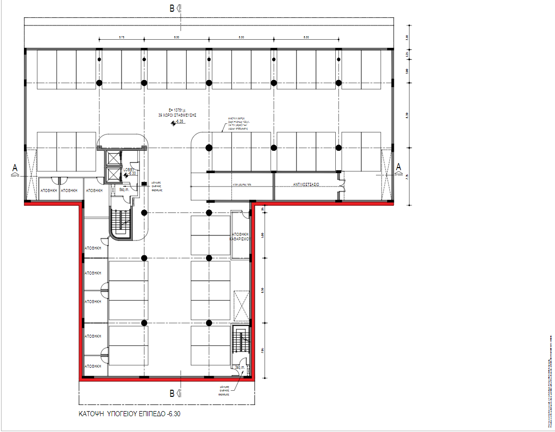
Floor Plans

Call Onlineproperties on 22 02 67 02 to view this property
ARRANGE A TIME TO VIEW THIS PROPERTY
Places I've saved(Add/edit places) View nearby schools on map
Location of property is with in displayed area
Call Onlineproperties on 22 02 67 02 to view this property
ARRANGE A TIME TO VIEW THIS PROPERTY
Distance
Address:
Telephone:
Rating:
Website:

Energy Efficiency Certificate

  • Α Certification
  • 0.40 kgCO2/m2/yr
0.50
KWh/m2/yr
0.40
kgCO2/m2/yr
Call Onlineproperties on 22 02 67 02 to view this property
ARRANGE A TIME TO VIEW THIS PROPERTY

Please Login To See Shortlisted Properties

Please Login To See Rated Properties

Please Login To See Notifications

Please Login To See Arranged Viewings